Umbau und Zusammenlegung zweier Einfamilenhäuser,
Mörfelden-Walldorf
Die Siedlung "Treburer Oberwald" wurde in den 1960er Jahren nach Plänen von Richard Neutra in Mörfelden-Walldorf errichtet. Zusammen mit der zur gleichen Zeit entstandenen, typologisch verwandten Siedlung "Quickborn" in Hamburg ist sie eines der wenigen Werke Neutras innerhalb Deutschlands.
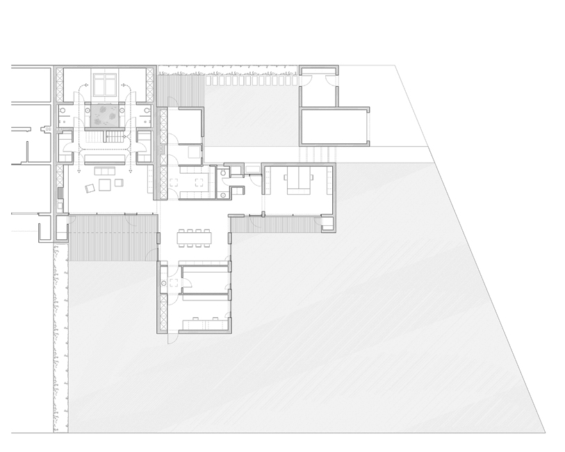
Gegenstand dieses Bauvorhabens ist die Vereinigung zweier benachbarter Einfamilienhäuser in jenem Teil der Siedlung, der von einer Wohnungsbaugesellschaft in Anlehnung an Neutras Entwürfe realisiert wurde. Durch die Verschmelzung des eingeschossigen L-förmigen Bungalows mit dem angrenzenden, aber durch die frühere Brandwand unzugänglichen Reihenhaus bietet sich die Möglichkeit, den in der bestehenden Architektur bereits angelegten und in Neutras Werken so zentralen Bezug zwischen Mensch, Natur und Architektur zu intensivieren und um eine räumliche Komponente zu bereichern.
Projektbeteiligte und Mitarbeiter
Ansatzpunkt der Planung ist eine typologische Transformation der beiden Gebäude, die das frontale Gegenüber von Innen und Aussen in eine räumliche Überlagerung von Innen- und Aussenbereichen überführt. Der Eingriff in die Substanz konzentriert sich im Bereich der ehemaligen Brandwand, wo durch die Erzeugung einer in beiden Geschossen durchgängigen Öffnung und die gegenläufige Faltung der Glasfassade das Thema des Entwurfs verdichtet wird. Die beiden früher unabhängigen Gebäude erhalten einen gemeinsamen Schwerpunkt, ein Kreuzgrundriss entsteht. Der frontale Bezug der Räume zum Garten wird durch eine starke, die beiden Gebäudeteile zusammenbindende Querachse und die Überlagerung von Innen- und Aussenräumen in der Diagonalen ergänzt.





































