Büro
Projekte
Wettbewerbe
Haus des Buches
Technisches Buchhändlerhaus
Haus des Buches Leipzig
Holzhausenschule
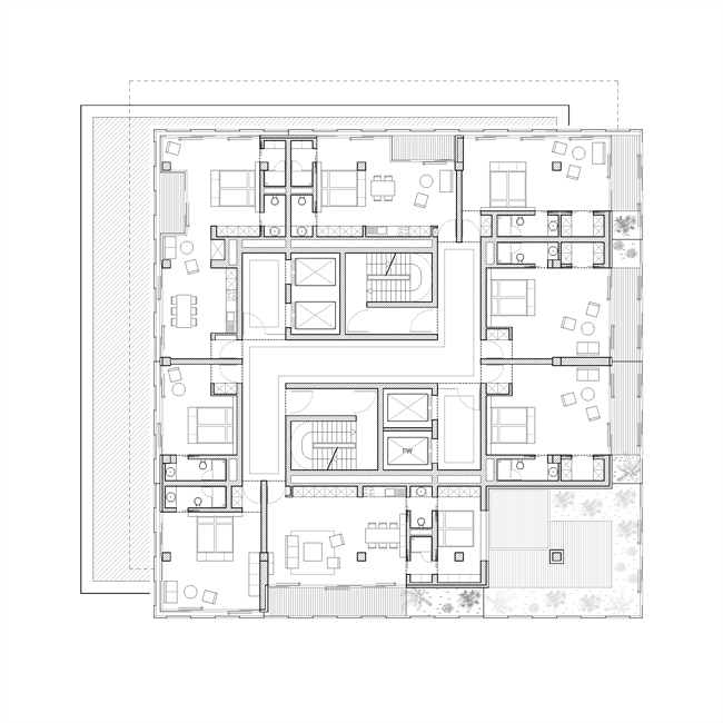
Henninger Turm
Kita Wettenberg
Kita Aschaffenburg
Hotel und Restaurant Sababurg
Mehrzweckhalle Hartenrod
Aktuell
Henninger Turm Areal,
Frankfurt
für Gruber + Kleine-Kraneburg Architekten, Frankfurt